| 保存情報 第129回 | ||||
| データ発掘(お気に入りの歴史的環境調査) | 稲沢市庁舎 | 谷口 元|名古屋大学 | ||
![]() |
![]() |
![]() |
![]() |
|
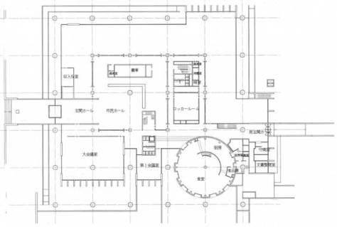
| 西北面ファサード | 西面ディテール | 市民ホール | 1階平面図 | |
| ■発掘者コメント 学生時代に誰かの車に便乗して見学して以来、久方ぶりに、一昨年ほど前からときどき市庁舎を訪れる機会を得ました。以前は田園の中に凛として佇んでいた記憶ですが、現在は周辺の開発が進み、全容を一望できるところがないぐらいです。しかし圧倒的な存在感は健在です。最上部に巨大な格子梁で組まれ水平線を強調した大屋根が、規則的に12m間隔で立てられた独立柱で支えられています。内外装ともほとんどが打ち放しコンクリート仕上げですが、大屋根を突き破ってそびえる円錐形の議事堂は懐かしい味わいのタイル貼りです。エントランスホールに入ると3層の吹き抜け空間が広がり、格子梁の間に設けられたトップライトから降り注ぐ柔らかな自然光が、市民を迎え入れます。今回の取材を機に、各階平面図を入手できたのですが、その完成度の高さに目を見張りました。外観の構成手法もモダニズム建築の教科書を見るようですが、妥協せずしっかりとデザインするべしという姿勢が建築全体を貫いています。狭い、寒い、雨漏りがするなど、ユーザーにとって困ったことが多いようですが、打ち放し面はその後厚化粧も施されず比較的良く保たれ、小規模な修繕の繰り返しで何とか原状が維持されているようです。周辺自治体との合併が進んだ稲沢市で、市庁舎建て替えの構想が出てもおかしくはないのですが、今のところそうした話は一切ありませんとの市職員の言葉を聞くにつけ、この建物の孤高の存在感が、世代を超えて地域の文化的資産として認識されつつあるのではないかと思われます。翻って現代の我々が設計している建築は果たしてどうかと考えさせられます。 |
![]() |
所在地:愛知県稲沢市稲府町1 竣工:昭和45年(1970) 設計:建築設計事務所ゲンプラン 構造設計:京都大学防災研究所 設備設計:建築設備設計研究所 施工:藤田組 構造:SRC 造 地上4階地下1階 建築面積:4,901㎡ 延床面積:8,504.71㎡ |
||
| 登録有形文化財 | 原眞佐実|原建築設計事務所 | |||
![]() |
![]() |
![]() |
|
|
| ■紹介者コメント 旧尾張藩二代藩主 光友公が隠居した大曽根屋敷跡(現徳川美術館・蓬佐文庫)の黒門(正門)前から北へ徒歩3分ほどのところにある。「日本福音ルーテル復活教会」の教会堂である。ルーテル教会の名古屋での伝道は大正4(1915)年の千種区今池の日本福音ルーテル教会名古屋教会で開始され、大曽根地方ではその後、昭和3(1928)年に宣教が始まった。以前、昭和9(1934)年献堂の大曽根教会堂があったが戦争で焼失。このため教会は一時閉鎖されたが、昭和28(1953)年に再建された。当時の規模は59坪で復活祭にちなんで「復活教会」と名づけられた。設計はヴォーリズ建築事務所で施工は大林組という契約書が今も残っているのは嬉しい。現在の敷地には、教会堂のほかに昭和36(1961)年に建てられた牧師館もあり、また、戦後の復興土地区画整理事業で設けられた西側道路の影響もあって、当初よりかなり狭くなった模様。以後は多少の改修(2008年)に伴う変更はあるものの旧状をよく残していると言える。名古屋でのヴォーリズ建築事務所の作品としては現存する数少ない貴重なものであるとともに、建築事情が必ずしも良くなかった時代の建築としても貴重である。教会堂の内部は切妻屋根の三角形の化粧小屋で母屋、垂木、登り梁の表わし。ヴォーリズの得意とするトラス構造の表現特徴を備えている。 だが、この建物のお勧めは外壁西面に設けられたガラスの十字架で、夕日により黄金色に輝くアンバーガラスは内陣や会堂全体を神々しく照らし出す。また、教会堂の横に附属する玄関上部の尖塔は、牧師室の中途空間より丸太柱を建てた構造になっているのも興味深い。 |
![]() |
所 在 地:愛知県名古屋市東区徳川町2303 登 録:2012年4月20日文化庁答申 構造・形式:木造平屋建て(塔屋2階建て) 切妻屋根 セメントスレート葺き 外壁下見板張り・ モルタル仕上げ 建築面積:180.23㎡ 延床面積:202.73㎡ 参考資料:「復活教会の教会堂」および資料 |
||